Bản vẽ tay về mặt hình thức thường hấp dẫn hơn bản vẽ máy, bởi nó tạo ra một ấn tượng tự nhiên với thị giác. Sự không hoàn hảo và đồng đều của các nét vẽ khiến sản phẩm trông có vẻ “thủ công”, cầu kỳ và nhiều nội dung hơn.
Để tạo ra hiệu ứng phác thảo (sketchy style) với AutoCAD, chúng ta hay phải nhập bản vẽ vào trong một phần mềm khác. Dễ nhất là chuyển qua SketchUp với style đa dạng và chất lượng cao. Tuy nhiên, nếu bạn chưa biết, chúng ta có thể tạo ra hiệu ứng này ngay trong AutoCAD, sau đó hậu kỳ thêm với Photoshop, mà vẫn cho ra kết quả rất tốt.
Trong bài viết này, tôi sẽ trình phương pháp nhanh và tiện lợi nhất để áp dụng hiệu ứng phác thảo cho bản vẽ AutoCAD của bạn. Để lại ý kiến ở phần bình luận nếu bạn có cách làm hay hơn.
MỤC LỤC
Xuất bản vẽ trong AutoCAD
Chúng ta sẽ cần có một số chỉnh sửa trên bản vẽ, vì thế hãy copy phần bản vẽ gốc của bạn trong viewport ra một chỗ khác. Nếu bạn trình bày chúng trên layout, bạn nên backup cả file AutoCAD hiện tại. Ở đây, tôi sẽ dùng một mặt bằng trong công trình thực tế làm ví dụ.

Lưu ý rằng bản vẽ mặt bằng này được thực hiện cho buổi trình bày ý tưởng đầu tiên, vì thế tôi sẽ chỉ dùng thước tỷ lệ thay cho dim (dimension). Bạn có thể áp dụng hiệu ứng này với cả những bản vẽ có dim nếu muốn.
Thiết lập in ấn
Nếu bạn in trong Model, nhấn Ctrl + P hoặc lệnh PLOT để mở hộp thoại Plot.

Trong hộp thoại Plot, chọn tên máy in là DWG to PDF ①. Ở phần Shaded viewport options bên phải, chọn Shade là Sketchy ②, Quality là Maximum ③. Thiết lập khổ giấy bạn mong muốn ④ (mẹo: tăng kích thước giấy lên để tăng độ nét cho nét). Sau đó chọn khung bản vẽ ⑤ nếu bạn đang trình bày trong Model. Bấm OK ⑥ để bắt đầu in. Chúng ta sẽ có kết quả như sau.

Nếu bạn in trong Layout, Shade sẽ luôn được thiết lập là As Displayed. Lúc này, bạn cần click đúp vào trong MVIEW, sử dụng lệnh VISUALSTYLES. Trong bảng Visual Styles Manager hiện ra, chọn chế độ Sketchy. Dùng lệnh REGEN nếu cần thiết. Lúc này bạn sẽ in ra được nét phác thảo.

Bản in của chúng ta lúc này đã có hiệu ứng phác thảo. Tuy nhiên, nó có vài vấn đề:
- Nét sofa ① đậm hơn nhiều so với các nội thất khác. Lý do là do block sofa này bị trùng nét, hãy phá khối, và sử dụng lệnh OVERKILL để xóa nét trùng.
- Một số nét đường cong bị loạn, mờ, không trơn (2, 4, 5). Lý do là vì các đường cong này đang là Polyline. Hãy mạnh tay phá khối, sau đó EXPLODE toàn bộ Polyline thành các đường thẳng (line) và đường cong (arc) rời.
- Một số chi tiết trông bị đậm ③ dù không bị trùng nét. Lý do là vì những block này đang bị quá chi tiết so với tổng thể. Để khắc phục, hãy sử dụng các block đơn giản hơn thay thế. Những block chỉ dùng đường thẳng (line) sẽ cho kết quả tốt nhất.
Sau khi khắc phục những vấn đề trên, bấm in thử lại, chúng ta sẽ có kết quả như sau:

Bổ sung ghi chú
Bạn có thể bổ sung ghi chú trong Photoshop hoặc AutoCAD. Tuy nhiên, ở đây, tôi khuyên ghi chú trực tiếp trong AutoCAD để chỉnh sửa nhanh hơn mỗi lần xuất bản vẽ. Với hiệu ứng này, chúng ta nên dùng các font chữ viết tay kiến trúc để phù hợp hơn.
Ở đây, tôi sử dụng font chữ HeavyHand (đã Việt hóa), được chia sẻ bởi anh Lê Việt Trường (KCDA) trong nhóm VBO (SketchUp Documentation Solutions) trên Facebook. Các bạn có thể tìm đến bài viết gốc để tải font chữ, hoặc cũng tải nó tại đây.

Sau khi bổ sung các ghi chú, chúng ta có kết quả như trên. Lưu nó lại thành 1 file PDF để chuyển qua hậu kỳ với Photoshop.
Hậu kỳ với Photoshop
Việc hậu kỳ diễn ra rất đơn giản. Chúng ta sẽ có 3 bước cơ bản là đổi màu nét, khử răng cưa và thêm hiệu ứng giấy (tùy chọn). Tất cả những hành động này có thể được ghi lại bởi Action Record trong Photoshop để có thể tự động hậu kỳ cho những bản vẽ tiếp theo.
Đổi màu nét
Chúng ta sẽ có 2 tùy chọn khi đổi màu nét: nét đen trắng và nét màu.
Đầu tiên là đổi sang nét đen trắng. Nó có thể dùng để mô phỏng nét vẽ của bút chì. Đây là cách làm tôi khuyên dùng với hầu hết các trường hợp. Với cách này các bạn chỉ cần dùng lệnh Image > Adjustments > Black & White… (phím tắt Alt + Shift + Ctrl + B) là đủ. Tôi thường nhân bản layer bản vẽ 1 lần, để chế độ Multiply để bản vẽ đậm hơn một chút.

Với nét vẽ màu, bạn nên đổi sang kiểu âm bản để các màu highlight được nổi trội hơn. Tuy nhiên, tôi chỉ khuyên dùng cách làm này với những đồ án cần sự ấn tượng rất mạnh và số lượng bản vẽ ít. Lý do cụ thể tôi đã trình bày ở bài viết 5 lý do nên sử dụng bản vẽ dương bản, anh em đồng nghiệp có thể tham khảo.
Đầu tiên, sử dụng lệnh Invert (phím tắt Ctrl + I) trong Photoshop để đổi sang môi trường âm bản. Sau đó sử dụng lệnh Hue/Saturation… (phím tắt Ctrl + U), điều chỉnh thông số Hue -180 ① để về màu gốc trong AutoCAD (do chúng ta đã dùng lệnh Invert trước đó). Sử dụng lệnh Levels (phím tắt Ctrl + L), điều chỉnh midtone lên 1.5 để các nét mảnh được hiển thị rõ hơn.

Hiện tại nó đã khá giống môi trường âm bản trong AutoCAD. Bạn sẽ có thể điều chỉnh thêm theo ý thích để bản vẽ được hợp mắt hơn.
Khử răng cưa
Sau khi xuất bản vẽ, một vài nét sẽ bị lỗi răng cưa, đặc biệt là các nét mảnh. Để khắc phục điều này, chúng ta có thể làm một mẹo nhỏ giống Corona Renderer trong 3ds Max. Đó là làm mờ trước (Blurring), sau đó làm nét (Sharpening). Tổng thể nét vẽ sẽ mờ đi một chút. Các thông số sẽ tùy thuộc vào bản vẽ của bạn.

Tôi hay dùng lệnh Gaussian Blur với Radius = 1, và 2 lần Sharpen More cho công việc này. Sau khi thực hiện, chúng ta sẽ có những nét vẽ nhòe và mềm, tổng thể trông sẽ tự nhiên hơn.
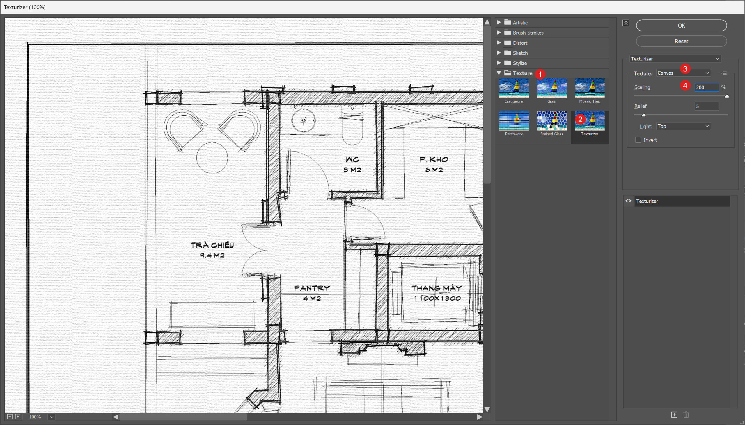
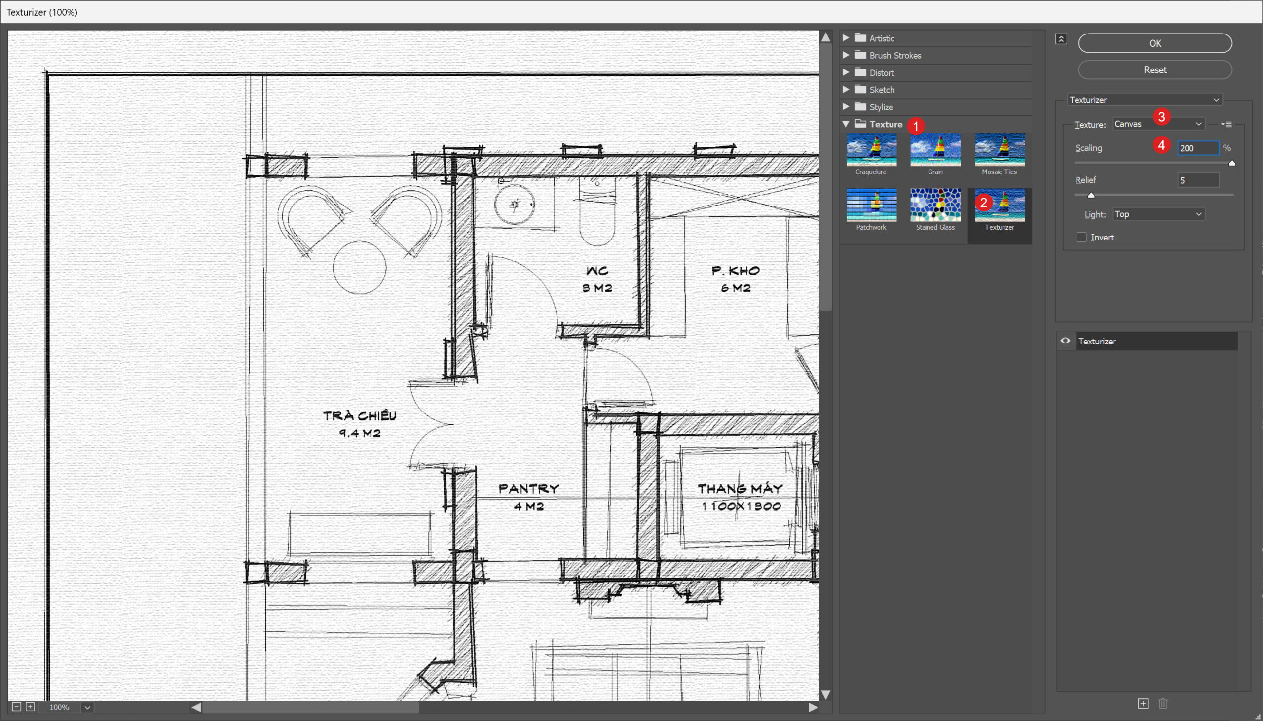
Tạo hiệu ứng giấy
Để thêm texture giấy vào trong bản vẽ, các bạn có thể sử dụng một file ảnh trang giấy thật, đè lên layer nét vẽ, và để chế độ Blend là Multiply hoặc Darken. Tôi thường sử dụng luôn tính năng Filter có sẵn trong Photoshop. Vào Filter > Filter Gallery… Chọn category Texture ①, hiệu ứng Texturizer ②. Trong bảng thuộc tính bên phải, chọn Texture là Canvas ③, sau đó điều chỉnh Scaling ④ tùy theo kích thước của khổ giấy. Bấm OK để hoàn thành.


Bản vẽ bây giờ trông đã có hiệu ứng phác thảo rất tự nhiên và hấp dẫn. Thường tôi sẽ kết thúc ở bước này và xuất ảnh luôn. Nếu muốn cầu kỳ hơn, bạn cũng có thể thêm các hiệu ứng trang trí khác như nét gạch bút chì, nếp nhăn giấy,…, để gây ấn tượng với người xem.
Tuy nhiên, theo tôi, đừng quá công phu cho các hiệu ứng phụ trợ, bởi nội dung vẫn là thứ được ưu tiên hàng đầu. Hãy giữ nó đơn giản. Chúc các bạn thành công.



















